• Architecture • BIM • Engineering • Design Coordination • Architecture • BIM • Engineering • Design Coordination
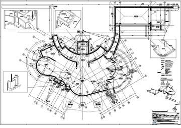
Project : Villa, Lage Vuursche
Type : House
Status : Completed - 2007
Client : Private
Architect : ir. M.P. Evelein bi bna
Role : BIM, drawings & Design Coordination
Area : 875 m²
Information :  
This very special and complex villa needed the specialization of 3D BluePrint to realize it. A 3D BIM was created out which the working drawings were generated.
 
Powered by Phoca Gallery