• Architecture • BIM • Engineering • Design Coordination • Architecture • BIM • Engineering • Design Coordination
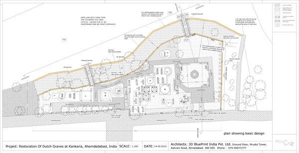
Project : Dutch VOC Graves, Ahmedabad
Type : Monumental
Status : Under Construction (restoration)
Client : State Department of Archaeology
Architect : 3D BluePrint
Role : Restoration design and coordination
Information :  
The monumental Dutch VOC graves were constructed in the Mughal time, between 1615 – 1700 A.D. This is one of the few places in Ahmedabad you can find traces of the 17th century trading post set up by the Dutch East India Company (VOC). These monuments are protected by the Gujarat State Archaeological Department. The major steps for restoration would be protecting the monuments from vandalism and graffiti, defining a proper pavement, restoring the deteriorating sloping land on its one side.
 
Powered by Phoca Gallery